聯系電話:
4006-181-398

產品型號:Z41H
公稱通徑:DN50~1200mm
壓力范圍:PN1.0~16.0MPa
工作溫度:-29℃~+600℃
主體材質:碳鋼、不銹鋼、合金鋼
產品結構特征
碳鋼閘閥適用于公稱壓力PN1.6~16.0MPa,工作溫度-46~600℃的石油、化工、火力電站等各種工況的管路上,切斷或接通管路介質。
其主要結構特點有
1、產品結構合理、密封可靠、性能優良、造型美觀。
2、密封面堆焊Co基硬質合金,耐磨、耐蝕、抗擦傷性能好、使用壽命長。
3、閥桿經調質及表面氮化處理,有良好的抗腐蝕性及抗擦傷性。
4、閥門設有倒密封結構,密封可靠。
5、零件材質及法蘭、對焊端尺寸可根據實際工況或用戶要求合理選配,滿足各種工程需要。
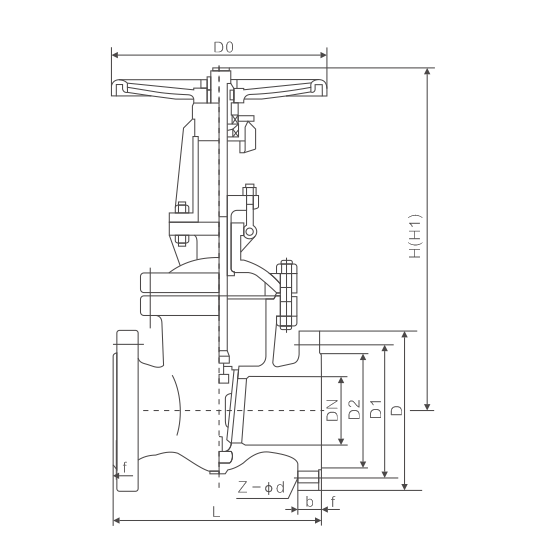
主要連接外形尺寸
|
DN(mm) |
L |
D |
D1 |
D2 |
b-f |
z-φd |
手動 |
|
|
H |
D0 |
|||||||
|
Z40/41H/W-10C Z40/41/H/Y-10P/R/PL/RL Z40/41W-10P/R/PL/RL Z40/41Y-10I |
||||||||
|
25 |
127 |
115 |
85 |
65 |
14-2 |
4-φ14 |
257 |
140 |
|
32 |
140 |
135 |
100 |
78 |
16-2 |
4-φ18 |
257 |
160 |
|
40 |
165 |
145 |
110 |
88 |
18-3 |
4-φ18 |
257 |
180 |
|
50 |
180 |
160 |
125 |
102 |
18-3 |
4-φ18 |
289 |
180 |
|
65 |
195 |
180 |
145 |
122 |
18-3 |
4-φ18 |
334 |
180 |
|
80 |
210 |
195 |
160 |
138 |
20-3 |
8-φ18 |
377 |
200 |
|
100 |
230 |
215 |
180 |
158 |
20-3 |
8-φ18 |
433 |
200 |
|
125 |
255 |
245 |
210 |
188 |
22-3 |
8-φ18 |
527 |
240 |
|
150 |
280 |
280 |
240 |
212 |
22-3 |
8-φ22 |
596 |
240 |
|
200 |
330 |
335 |
295 |
268 |
24-3 |
8-φ22 |
772 |
320 |
|
250 |
360 |
390 |
350 |
320 |
26-3 |
12-φ22 |
904 |
320 |
|
300 |
420 |
440 |
400 |
370 |
26-4 |
12-φ22 |
1045 |
400 |
|
350 |
450 |
500 |
460 |
430 |
26-4 |
16-φ22 |
1177 |
400 |
|
400 |
480 |
565 |
515 |
482 |
26-4 |
16-φ26 |
1345 |
500 |
|
450 |
510 |
615 |
565 |
532 |
28-4 |
20-φ26 |
1497 |
500 |
|
500 |
540 |
670 |
620 |
585 |
32-4 |
20-φ26 |
1648 |
720 |
|
600 |
600 |
780 |
725 |
685 |
36-5 |
20-φ30 |
1648 |
720 |
|
700 |
660 |
895 |
840 |
800 |
36-5 |
24-φ30 |
1648 |
720 |
|
800 |
720 |
1010 |
950 |
905 |
38-5 |
24-φ33 |
1648 |
720 |
|
900 |
800 |
1110 |
1050 |
1005 |
38-5 |
28-φ33 |
1648 |
720 |
|
1000 |
850 |
1220 |
1160 |
1115 |
38-5 |
28-φ36 |
1648 |
720 |
|
1200 |
1000 |
1450 |
1380 |
1328 |
44-5 |
32-φ39 |
1648 |
720 |

京公網安備 XXXXXXXXXXXXX